News
1949: Boca Grande’s first newspaper, the Boca Grande Journal
September 12, 2024
BY JAMES J. BLAHA, DIRECTOR, BOCA GRANDE HISTORY CENTER
The year was 1949, when NATO was established, West Germany was created, the People’s Republic of China was formally proclaimed and the Sovi…
Artificial Intelligence and the year ahead at Friends
September 12, 2024
Editor’s Note: The Friends of Boca Grande just released their 2024-25 Happenings booklet, in mail soon.
On the cover is a talk with Heidi McKee on Artificial Intelligence. As an experiment, the B…
Bicycle safety signs now up on Causeway
September 12, 2024
The Gasparilla Island Bridge Authority has installed six new bike signs at each bridge approach. The signs, which were agreed upon at an Aug. 15 quarterly board meeting, inform bikers that they may…
IN THE SPOTLIGHT: Florida to Michigan and back, with Friends, Josh Cross
September 12, 2024
The Friends of the Boca Grande Community Center is a hub for entertaining, educational and thought-provoking programs that set a tone and reflect the interests of the people of the island.
One of…
EcoWatch: State Park plans stop due to brave informant
September 6, 2024
“Everybody needs beauty as well as bread, places to play in and pray, where nature may heal and give strength to body and soul alike.”
John Muir, naturalist and poet
Last week, residents of Fl…
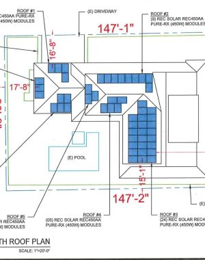
Solar roofs and renovations to historic cottage slated
September 6, 2024
At top, plans for one of the two solar projects in front of the Historic Preservation Board. The panels are on the rear of the house so they are not visible from Gilchrist Avenue. The board decided…
AI buzz makes 400 percent jump in old land-line phone stock
September 6, 2024
Lumen Technologies, the parent company of old CenturyLink, Gasparilla Island’s landline telephone company, has had a major stock run-up this summer, due to speculator interest in demand for artifici…
Plans in work for 2025 Visitor’s Guide; copies available
September 6, 2024
The Boca Beacon’s Visitor’s Guide is the only promotional magazine for travelers to Gasparilla Island, and an essential for advertisers, as it is the key to one of Florida’s wealthiest zip code, 339…
Lee County Appraiser encourages review of property assessments
September 6, 2024
Island real estate not easy to categorize; values hold steady
If property owners have questions about their assessments that came out in recently sent Truth in Millage notices (TRIM), they have u…
Chalk cleanup for overflow at GIWA water works
September 6, 2024
A half-million gallons of rainy sewage leaked onto the Gasparilla Island Water Authority plant grounds after Hurricane Debby. The spill was at 2:05 a.m. on Monday, Aug. 5. It did not go into the Bay…











