News
IN THE SPOTLIGHT: Florida to Michigan and back, with Friends, Josh Cross
September 12, 2024
The Friends of the Boca Grande Community Center is a hub for entertaining, educational and thought-provoking programs that set a tone and reflect the interests of the people of the island.
One of…
EcoWatch: State Park plans stop due to brave informant
September 6, 2024
“Everybody needs beauty as well as bread, places to play in and pray, where nature may heal and give strength to body and soul alike.”
John Muir, naturalist and poet
Last week, residents of Fl…
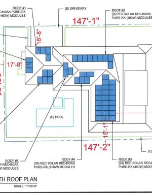
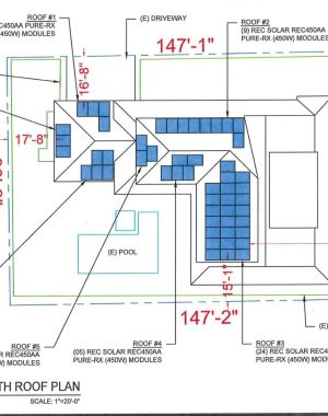
Solar roofs and renovations to historic cottage slated
September 6, 2024
At top, plans for one of the two solar projects in front of the Historic Preservation Board. The panels are on the rear of the house so they are not visible from Gilchrist Avenue. The board decided…
AI buzz makes 400 percent jump in old land-line phone stock
September 6, 2024
Lumen Technologies, the parent company of old CenturyLink, Gasparilla Island’s landline telephone company, has had a major stock run-up this summer, due to speculator interest in demand for artifici…
Plans in work for 2025 Visitor’s Guide; copies available
September 6, 2024
The Boca Beacon’s Visitor’s Guide is the only promotional magazine for travelers to Gasparilla Island, and an essential for advertisers, as it is the key to one of Florida’s wealthiest zip code, 339…
Lee County Appraiser encourages review of property assessments
September 6, 2024
Island real estate not easy to categorize; values hold steady
If property owners have questions about their assessments that came out in recently sent Truth in Millage notices (TRIM), they have u…
Chalk cleanup for overflow at GIWA water works
September 6, 2024
A half-million gallons of rainy sewage leaked onto the Gasparilla Island Water Authority plant grounds after Hurricane Debby. The spill was at 2:05 a.m. on Monday, Aug. 5. It did not go into the Bay…
Upcoming Charlotte County meetings
September 6, 2024
Charlotte County government meetings for the coming week.
Monday, Sept. 9, 2024, 1:30 p.m. — Planning and Zoning Board, Charlotte County Administration Center, 18500 Murdock Circle, Room 119, Por…
Chamber Talk
September 6, 2024
BocaGrandeChamber.com, 941.964.0568
Boca Grande Area Chamber of Commerce upcoming events
• Thursday, Sept. 26, 5 to 7 p.m. All American Tri-Chamber Mixer with hot dogs, hamburgers and apple pi…
Youth Fall Festival and Fishing Tournament planned
September 6, 2024
A youth fishing tournament will be held at the 7th Street Beach Access due to the temporary closure of the Boca Grande Fishing Pier. It will run from 9 a.m. to 11 a.m. on Saturday, Sept. 14. Tournam…











